Österåker

Projekt: Uteplats och tillbyggnad med strandskyddsdispens
Plats: Österåker

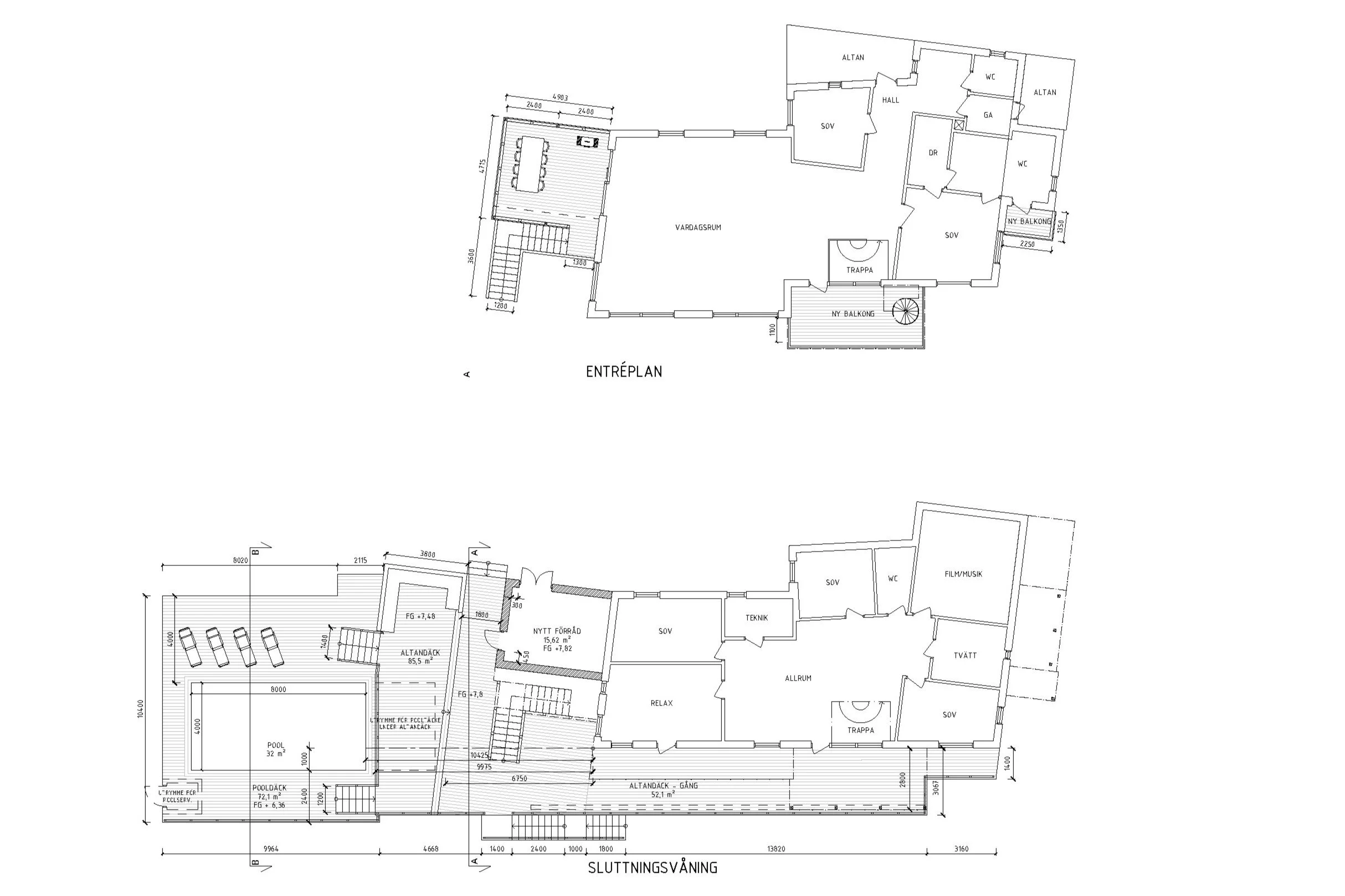
En villa i Österskär får en ny uteplats och pool i sutteräng. Uteplatsen har fått godkänd strandskyddsdispens då den byggs väldigt nära kusten med trappor ned till den privata bryggan.

Föregående
Föregående

Kallbadhus

Nästa
Nästa

Sollentuna