Styrmansgatan

Projekt: Tandläkarmottagning blir bostadsrätt
Plats: Stockholm

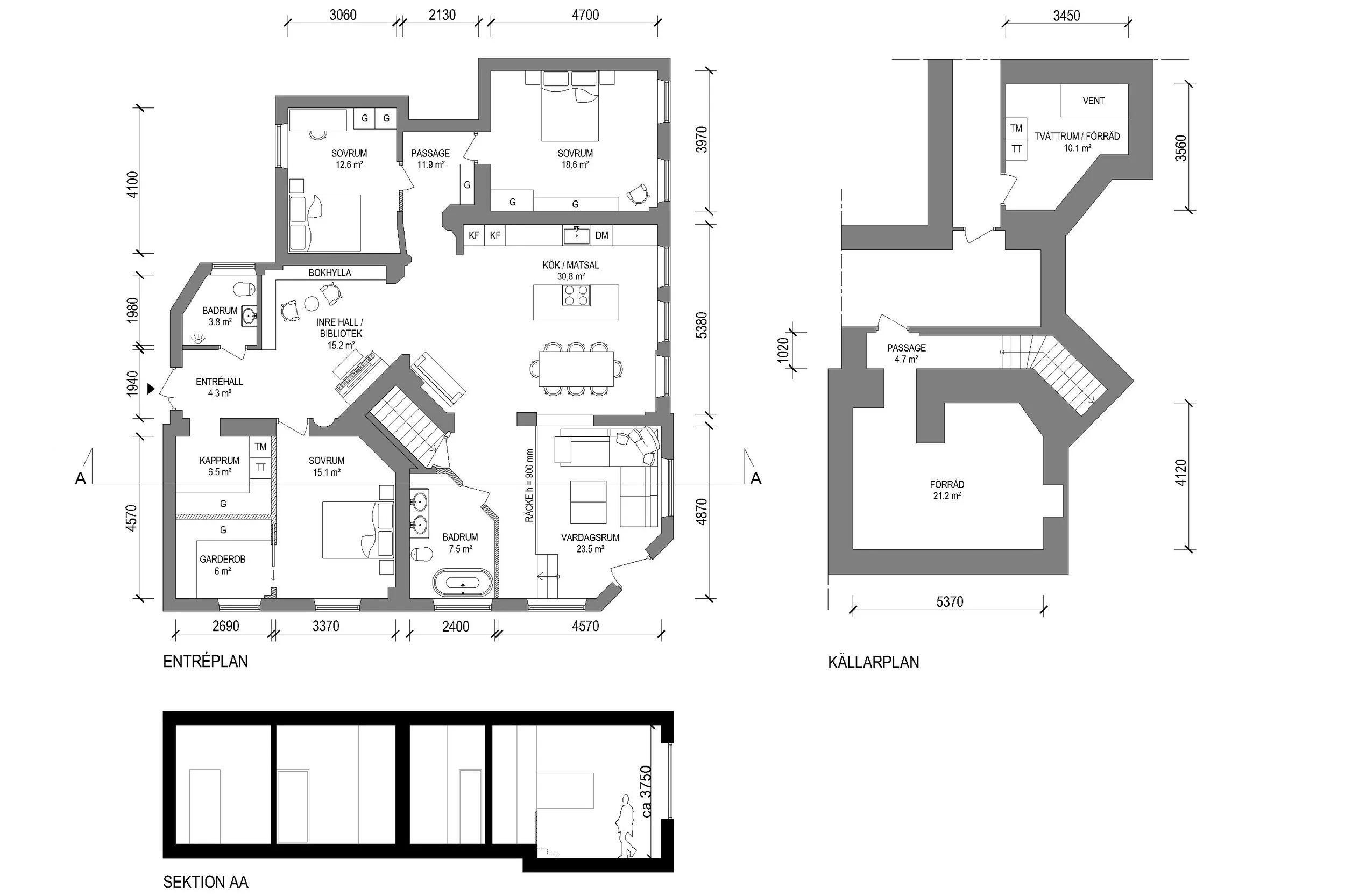
En tandläkarpraktik i Stockholm får möjlighet att omvandlas från lokal till bostadsrätt inför försäljning. Den nya planen använder sig av moderna inslag i en annars väldigt tidstypisk sekelskiftsmiljö.

Nästa
Nästa

Kallbadhus