Ekerö

Projekt: Attefallstillbyggnad på fritidshus
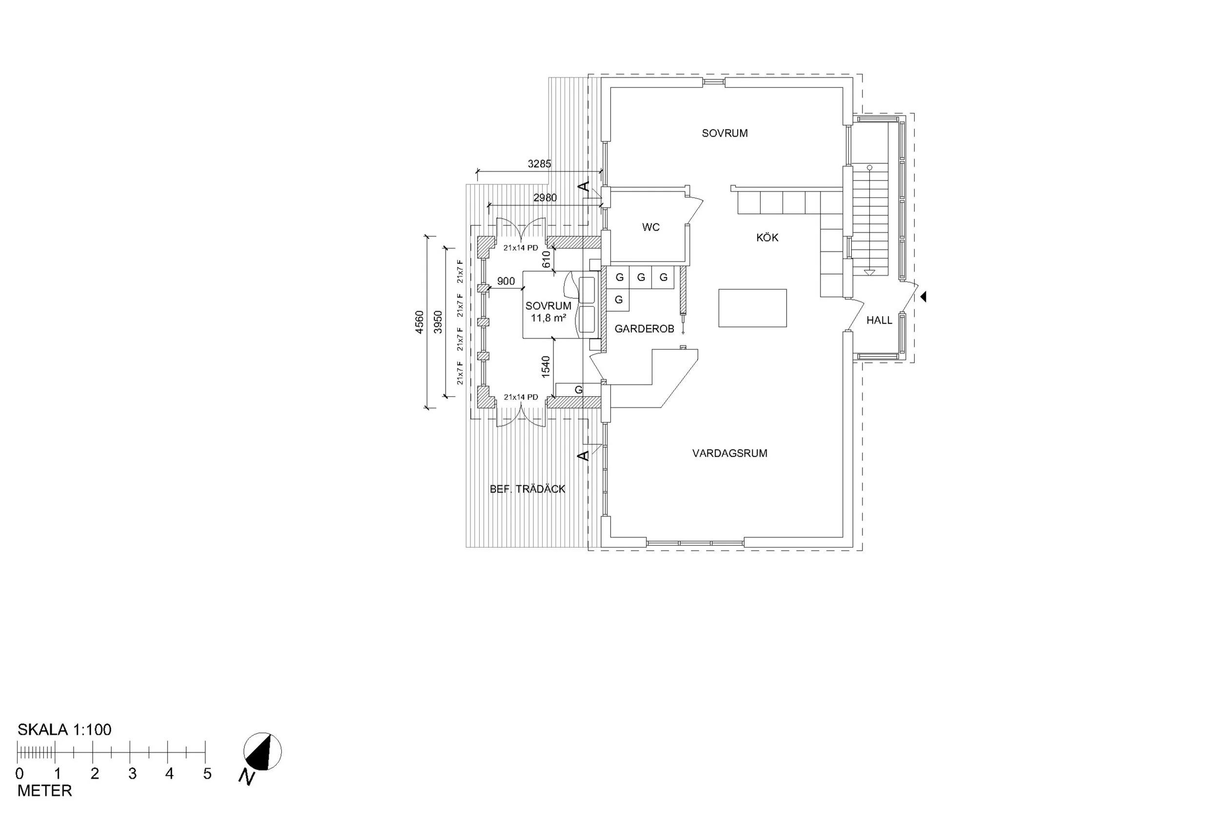
Plats: Ekerö

Attefallstillbyggnad på 15 kvm i ett detaljplanerat område för fritidshus vilket inte tillåter mycket spelrum i kvadratmeter. Husets befintliga stil sätter tonen för uttrycket. Tillbyggnaden blir ett sovrum med mycket ljusinsläpp och direkt tillgång till trädgården och uteplatsen.

Föregående
Föregående

Österskär

Nästa
Nästa

Ekerö