Österskär

Projekt: Garage och ny uteplats med pool
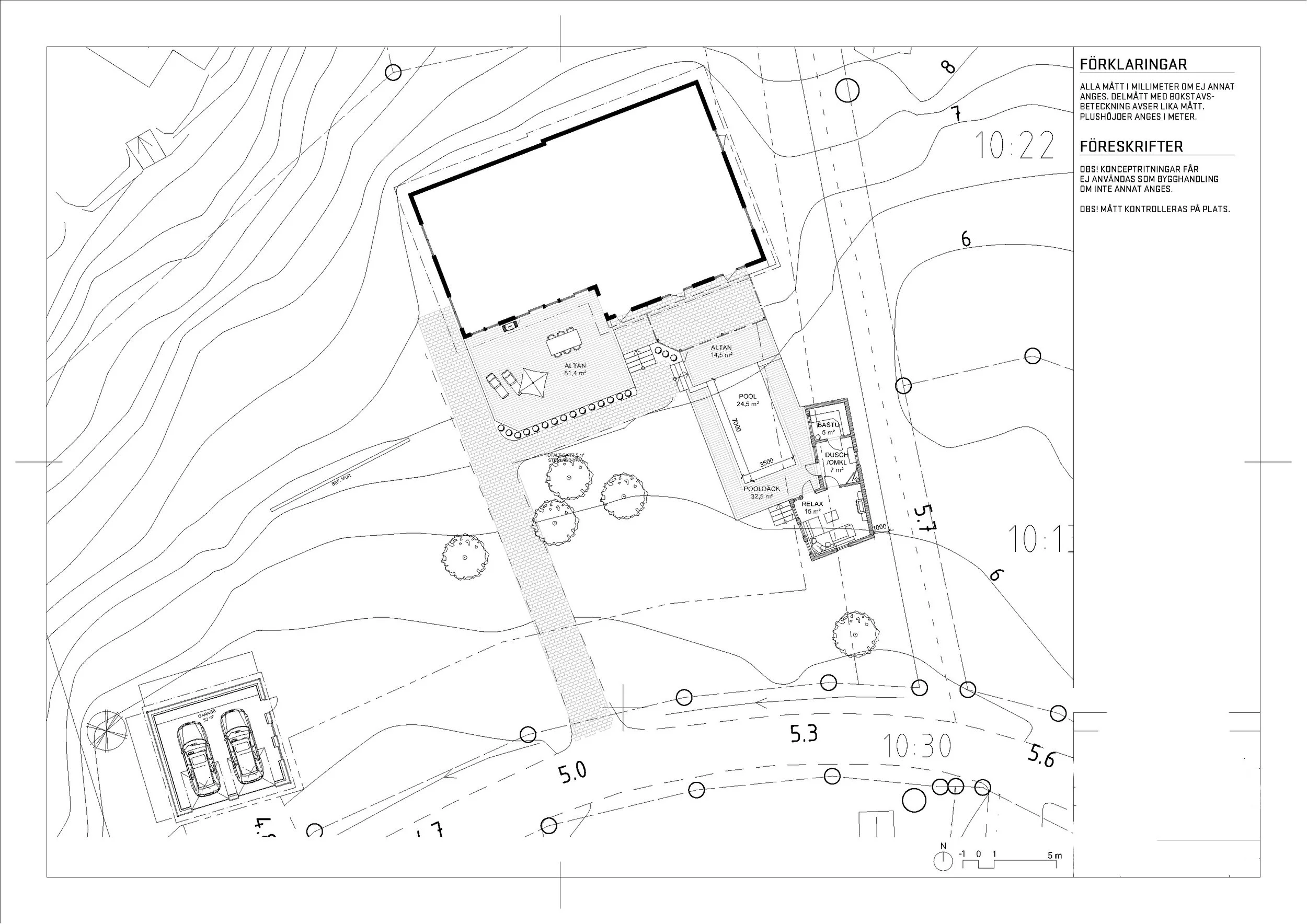
Plats: Österskär

En villa i Österskär får ett nytt garage och en uteplats med pool. Garaget speglar huvudbyggnadens utseende och försöker hålla sig till den äldre stilen som grosshandlarvillorna i området har fast i mindre format.

Föregående
Föregående

Åkersberga

Nästa
Nästa

Ekerö